Oppervlakten en inhoud:
Woonoppervlakte: 126 m²
Gebouwgebonden buitenruimte: 12 m²
Perceeloppervlakte: 138 m²
Inhoud: 457 m³
Indeling:
Aantal kamers: 4
Aantal slaapkamers: 3
Aantal badkamers: 1
Badkamervoorz.: Wasmachineaansluiting, Toilet, Wastafelmeubel, Douche
Aantal woonlagen: 2 woonlagen
Voorzieningen:
Tv kabel en buitenzonwering
Energie:
Energielabel: C (einddatum: 05-02-2034)
Isolatie: Dubbel glas en HR-glas
Verwarming en warm water: C.V.-Ketel
Bovenwoning
126 m²
1903

Wat een leuk appartement is dat!! Snel komen kijken!
In het hart van Kralingen (hoek Lambertusstraat en Oudedijk) gelegen zeer fraai DUBBEL BOVENHUIS, met heerlijk, zonnig DAKTERRAS, aan de Lambertusstraat 1a te Rotterdam, Kralingen. Dit charmante appartement uit 1903 bevindt zich in goede gemoderniseerde staat, heeft een fijne lichtinval en een leuk "dorps" uitzicht op de Oudedijk. Park Rozenburg, de Lusthofstraat, metrostation Voorschoterlaan, de Kralingse Plas en het bos zijn op loopafstand.
Indeling:
Begane grond:
Mooie eigen entree, meterkast, zeer hoog plafond met ornament, trapopgang met fraaie glas-in-loodramen.
1e Verdieping: (met hoge plafonds ca. 3.00m!)
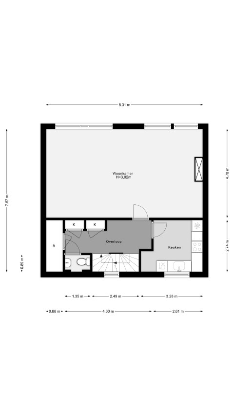
Ruime overloop, garderobekast, ruime bergkast, vaste kast, modern toilet.
Royale lichte woonkamer, met uitzicht ca. 8.30 x 4.70, met brede lamelparket vloerdelen en glas-in-loodramen.
Moderne keuken (2013) ca. 3.30 x 2.75, met L-vormig keukenblok met inbouwapparatuur: vaatwasser, koel-vriescombinatie, afzuigkap, gaskookplaat en heteluchtoven.
2e Verdieping:
Overloop met toegang naar het zonnige dakterras ca. 5.30 x 2.40, aan de achterzijde van de woning. Houten vloer.
Riante slaapkamer I ca. 4.65 x 4.25 met vaste kasten.
Ruime slaapkamer II ca. 4.65 x 3.65 met vaste kasten.
Ruime slaapkamer III ca. 3.35 x 3.00.
Nette geheel betegelde badkamer ca. 2.35 x 2.40 met douche, handdoekradiator, wastafelmeubel, aansluiting wasmachine.
Bijzonderheden:
Eigen grond.
Dakterras op de zon (middag en avond).
Voldoende parkeergelegenheid in de directe omgeving.
Parkeren met vergunning.
VVE bijdrage: € 160,50 per maand.
Energielabel C, met vrijwel overal HR+ of dubbel glas.
Verwarming en warm water middels HR C.V.-combiketel.
Elektrische zonnescreens.
Dakgoten achter recentelijk vernieuwd.
Vlonderplanken dakterras in 2023 vernieuwd.
Groot aantal vaste kasten.
In de koopovereenkomst zal een zgn. ouderdomsclausule worden opgenomen.
Woonoppervlakte ca. 126 m².
Inhoud ca. 457 m³.
Bouwjaar 1903.
Kralingen is een prachtige en rustige buurt in Rotterdam, gelegen tussen Kralingse Bos en de Maas. De wijk staat bekend om zijn ruime opzet, groene omgeving en diverse woningtypen, variërend van villa's tot appartementen. Met uitstekende voorzieningen, zoals winkelcentrum Lusthofstaat, scholen en openbaar vervoer op loopafstand, is Kralingen een ideale plek om te wonen voor zowel gezinnen als jonge professionals.
Huis kopen? Neem uw eigen NVM-makelaar mee!
Deze informatie is geheel vrijblijvend, uitsluitend voor geadresseerde bestemd en niet bedoeld als aanbod. Deze informatie is met zorg samengesteld, voor de juistheid ervan kunnen wij geen aansprakelijkheid aanvaarden, noch kan aan de vermelde gegevens enig recht worden ontleend. Deze informatie is slechts een uitnodiging tot het doen van een aanbod en onder voorbehoud van gunning.
Verkoop je woning met succes. Nodig ons uit voor een gratis waardebepaling en verkoopadvies op maat. Ontdek onze werkwijze voor een succesvolle verkoop van jouw huis!
Overweeg dan om een ervaren NVM aankoopmakelaar van Langejan in te schakelen. Onze makelaars kennen Rotterdam en omgeving als geen ander en kunnen je helpen bij het vinden van de perfecte woning.
Makelaarskantoor Langejan al 159 jaar jouw vertrouwde NVM makelaar uit Kralingen voor de hele regio Rotterdam. Sinds 1867 begeleiden wij bij de aan- en verkoop van de mooiste woningen. Kralingse kwaliteit voor heel Rotterdam en omstreken.
Makelaarskantoor Langejan
Oudedijk 25
3062 AC Rotterdam
010 – 272 00 00
info@langejan.com
BTW: NL8048.86.969.B01
KvK: 24126812
© 2015-2026 Makelaarskantoor Langejan