Oppervlakten en inhoud:
Woonoppervlakte: 109 m²
Gebouwgebonden buitenruimte: 26 m²
Inhoud: 374 m³
Woonkamer: 51 m²
Indeling:
Aantal kamers: 5
Aantal slaapkamers: 3
Aantal badkamers: 1
Overige ruimten: Toilet, gang, balkon
Badkamervoorz.: Wasmachineaansluiting, douche, wastafelmeubel
Aantal woonlagen: 2 woonlagen
Voorzieningen:
Tv-kabel en natuurlijke ventilatie.
Bovenwoning
109 m²
1930

Ervaar de charme van deze fijne bovenwoning met twee verdiepingen en een ruim dakterras.
Dit appartement, onderdeel van een Rijksmonument is een karakteristieke woning waarbij veel authentieke details zoals glas-in-lood ramen, ensuite deuren, origineel plafond en paneeldeuren zijn behouden gebleven. Gelegen nabij de Lusthof, biedt dit appartement de perfecte balans tussen een historisch look en modern comfort. Kom snel langs en ontdek zelf de bijzondere sfeer van deze woning.
2e verdieping:
Entree, overloop, WC met fonteintje
Zeer ruime woon/eetkamer ensuite ca. 12.50 x 3.85 met prachtige parketvloer, glas-in-lood, schuifdeuren, inbouwkasten, schouw en voor- en achter vrij uitzicht
Keuken ca. 3.20 x 1.90 met eiken vloer, diverse inbouwapparatuur, en met deur naar het balkon
Balkon I ca. 1.90 x 1.20 gelegen aan de achterzijde met vrij uitzicht
Slaapkamer I ca. 2.30 x 1.90 gelegen aan de voorzijde met inbouwkast
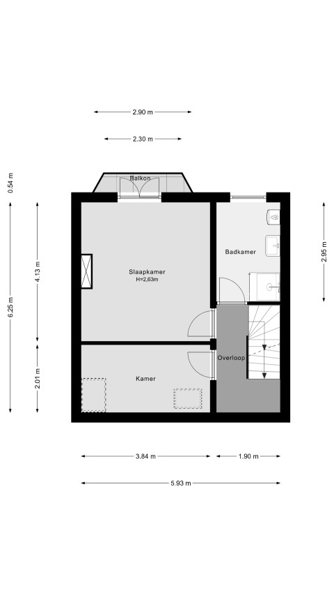
3e verdieping:
Overloop met trap naar het dakterras ca. 4.85 x 4.50
Slaapkamer II ca. 4.15 x 3.85 en dubbel openslaande deuren naar balkon II.
Balkon II ca. 2.30 x 0.55 met vrij uitzicht gelegen aan de voorzijde.
Badkamer ca. 2.95 x 1.90 voorzien van douche, wastafelmeubel, wasmachineaansluiting en cv-opstelplaats.
Slaapkamer III ca. 3.85 x 2.00
Bijzonderheden:
Bouwjaar: 1930
Woonoppervlakte: 109 m²
Volle eigendom
Ruim ca 22 m² groot dakterras
Verwarming en warm water: Nefit HR-combiketel (2015)
Rijksmonument
VvE bedraagt € 130,- per maand
Verbouwing van dakterras gedaan in 2022
Glasvezel internet aanwezig
Energielabel vrijstelling
Aan het mooiste gedeelte van de Honingerdijk, bieden wij een royaal, karakteristiek dubbel bovenhuis aan met een ruim en waanzinnig dakterras. Deze bovenwoning is ca. 109 m². Zeer centraal gelegen in een gewild gedeelte van Kralingen dichtbij de statige Sint Lambertuskerk. Tegenover de Trompenburg Tuinen & Arboretum en op loopafstand zijn diverse winkels o.a. aan de Lusthoflaan, maar ook horecagelegenheden, de Erasmus Universiteit en diverse recreatiemogelijkheden op of rond de Kralingse Plas en -Bos. Uitvalsweg A16 op slechts een enkele kilometer afstand te bereiken.
Huis kopen? Neem uw eigen NVM-makelaar mee!
Deze informatie is geheel vrijblijvend, uitsluitend voor geadresseerde bestemd en niet bedoeld als aanbod. Deze informatie is met zorg samengesteld, voor de juistheid ervan kunnen wij geen aansprakelijkheid aanvaarden, noch kan aan de vermelde gegevens enig recht worden ontleend. Deze informatie is slechts een uitnodiging tot het doen van een aanbod en onder voorbehoud van gunning.
Verkoop je woning met succes. Nodig ons uit voor een gratis waardebepaling en verkoopadvies op maat. Ontdek onze werkwijze voor een succesvolle verkoop van jouw huis!
Overweeg dan om een ervaren NVM aankoopmakelaar van Langejan in te schakelen. Onze makelaars kennen Rotterdam en omgeving als geen ander en kunnen je helpen bij het vinden van de perfecte woning.
Makelaarskantoor Langejan al 159 jaar jouw vertrouwde NVM makelaar uit Kralingen voor de hele regio Rotterdam. Sinds 1867 begeleiden wij bij de aan- en verkoop van de mooiste woningen. Kralingse kwaliteit voor heel Rotterdam en omstreken.
Makelaarskantoor Langejan
Oudedijk 25
3062 AC Rotterdam
010 – 272 00 00
info@langejan.com
BTW: NL8048.86.969.B01
KvK: 24126812
© 2015-2026 Makelaarskantoor Langejan